El edificio es el clásico proyecto urbano de vivienda en el cual no queda mucho sitio para juegos y extravagancias, hay que seguir demasiados reglamentos y el mas importante de todos es el cumplir con las expectativas de densidad, metraje, costo de construcción y precio de venta de mercado.
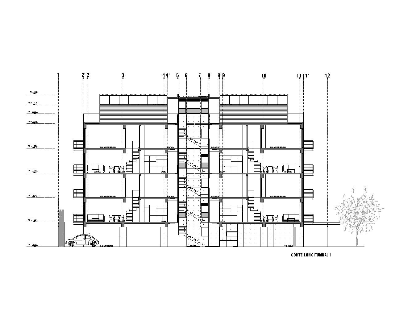
Diseñamos un edificio que se compone de dos bloques de departamentos distribuidos en dos niveles cada uno con la finalidad de eficientar las circulaciones verticales y horizontales.
En la planta baja ubicamos el área social de acceso, estancia, comedor y cocina, teniendo en la planta alta el baño y dos recámaras.
La estructura es de concreto con fachadas prefabricadas, lo que hace del proceso constructivo un camino muy fluido y cierto en cuanto a tiempos y costos.
Las fachadas cuentan con balcones de herrería y acero inoxidable que dan un toque de ligereza y contraste a la masividad de las fachadas en las que predomina el macizo sobre el vano.
Superficie
2,500 m2
Programa
20 Departamentos de:
2 Recámaras, sala, comedor, cocina y baño.
10 Departamentos de los niveles 3 y 4 con terraza tipo Roof Garden en el 5° nivel.
Proyecto y Construcción
PROYECTO:
GRUPO ARQUITECTURA
DANIEL ALVAREZ F. & FERNANDO FERNÁNDEZ B.
CONSTRUCCIÓN:
GRUPO ARQUITECTURA
DANIEL ALVAREZ F. & FERNANDO FERNÁNDEZ B.
EQUIPO DE PROYECTO:
Rosa López
Susana López
Petra Quiroz
Alfonso Magaña
Rafael Sánchez
FOTOGRAFIA:
Paúl Czitrom















